Contemporary extension in Sway

 

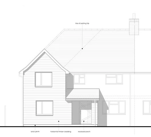
Planning permission granted for a two storey side extension and rear extension to a property within Sway defined village. Contemporary extension provides a home office, WC, utility space, additional bedroom and family bathroom. The extension is clad in horizontal timber, contrasting with the existing brickwork. The covered porch gives a welcoming entrance, combined with internal alterations to improve the flow of the ground floor.  

 
Previous
Previous

Loos news!

Next
Next

Countryside Development